Kuća i apartmani u Ćetojevićima

Godina projektovanja
2023
Godina izgradnje
xxxx
Status
Glavni projekat
Lokacija
Ćetojevići

Kuća i apartmani u Ćetojevićima

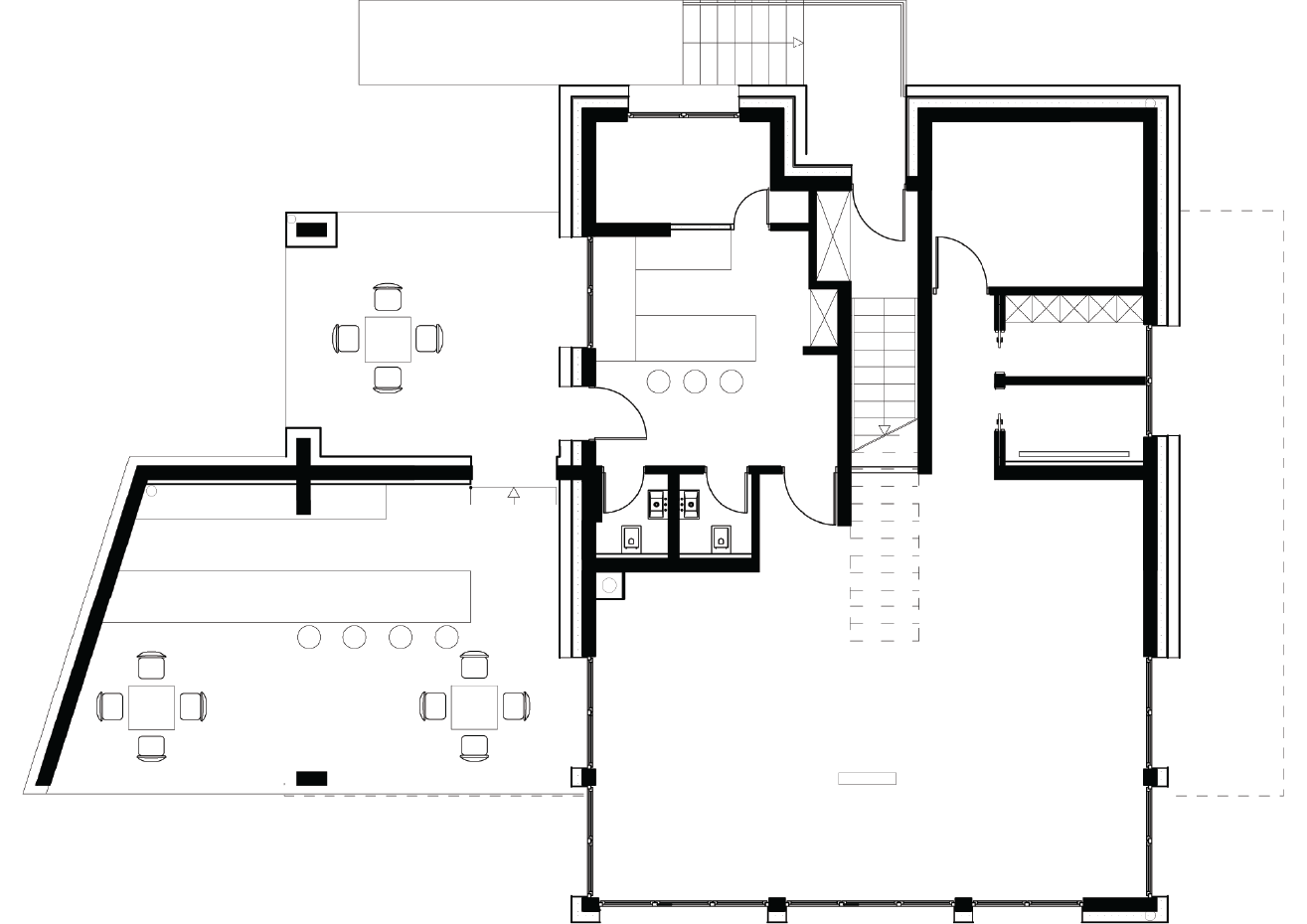
Ideja da savremena arhitektura može biti nenametljiva u odnosu na zatečeni prostor bilo da je on izgrađen ili kao u ovom primjeru neizgrađen, obilježilo je početak istraživanja stambene ruralne arhitekture Krajine, kao lokacije za porodičnu kuću i apartmane za privatene goste. Kuća na sprat duboko je ukorijenjena kao sveprisutna tipologija koja zadovoljava sve zahtjeve korisnika te je uzeta kao polazište istraživanja. Programom su zadani prostori koji moraju dobro funkcionisati a njihovi odnosi predmet su prostorne analize.

Prizemlje u oba objekta čine prostori za druženje, zabavu, sport, igru i tako spojeni sa vanjskim prostorom iste funkcije produžavaju se I izvan objekta u hortikulturno uređen prostor, na sportski teren ili bazen. Kod porodične kuće dnevni boravak, kuhinja,trpezarija smješteni su u jedinstvenom prostoru na prvom spratu na kojem se nalazi i glavna spavaća soba sa pripadajućom garderobom i kupatilom, sve spojeno sa velikom dijelom pokrivenom terasom i vanjskim prostorom. Na potkrovlju je prostor za slušanje muzike i odmor. Drugi objekat ima četiri apartmana raspoređena na spratu i potkrovlju po dva.

Dvoznačnost se naglašava izborom materijala, čvrst prizemljeni volume u kamenu stvara funkcionalne zone ne samo funkciji zatvorenih već i otvorenih prostora, a spratovi i krov od laganog dijelom perforiranog kortena koji teče preko fasade na krov i natrag povezujući ih na taj način u jedinstvenu cjelinu koja opet kao da je baš tu nedostajala da upotpuni prostor doline na rubu brda i poveže ih. Naslijeđe smo prigrlili, analizirali I preformulisali u savremeno ostavši tako dosljedni i tradiciji i sebi.