Porodična kuća u Cikotama

Godina projektovanja
2023
Godina izgradnje
2025
Status
u izgradnji
Lokacija
Prijedor

Porodična kuća u Cikotama, Prijedor

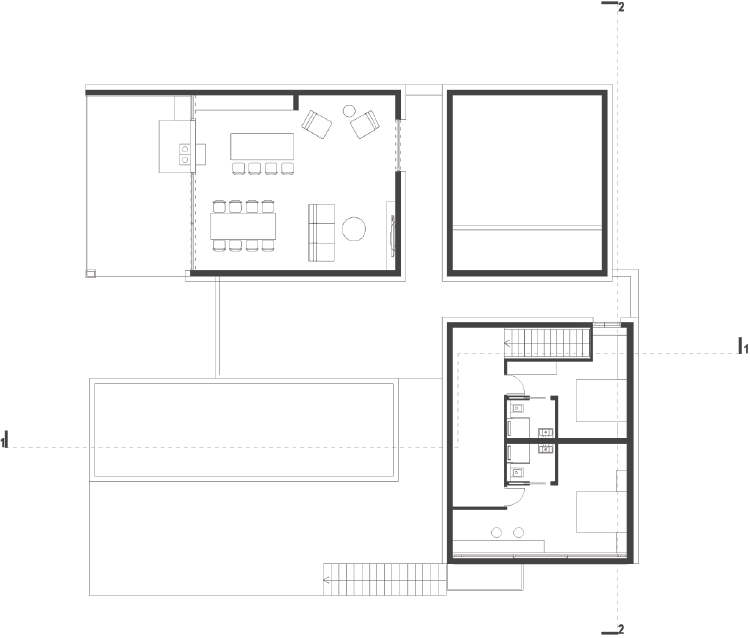
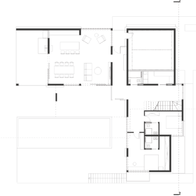
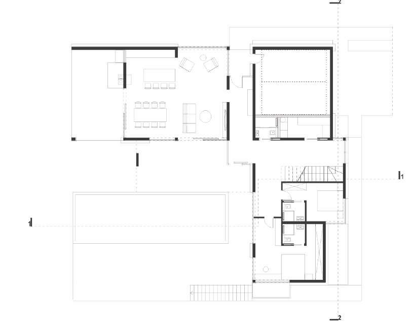
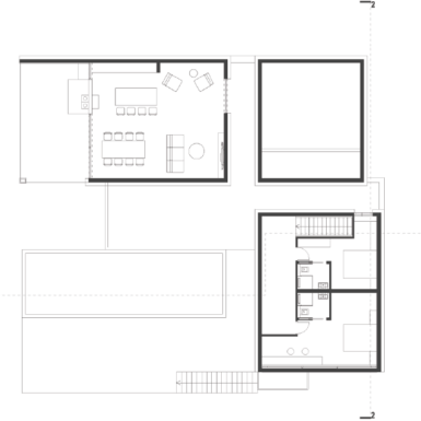
Породична кућа за одмор у мјесту Цикоте налази се у посебно атрактивном дијелу југоисточне падине са погледом на Приједор и Козару и на парцели са денивелисаним приступима са двију приступних страна. Конфигурација терена, околна изградња, пејзажна и амбијентална вриједност породичних кућа уједначеног мјерила и положај на падини одмах дају јасне елементе који се морају поштовати.

У складу са наведеним условима пројектован је објекат који је Л облика и ломи се према двјема основним осама изградње. Једна је везана за сам улаз и приступ парцели а друга за околну изградњу и орјентацију. Денивелација терена се користи за дио сутеренске етаже у којој је техника. Такав тлоцрт и различита спратност имплицира претјерану разведеност волумена и нападно обликовање али заправо се условљени елементи обликовањем спајају у намјерно суздржану архитектуру. Избор материјала, јасна раздвојеност између грубих бијелих потеза фасаде и тамног крова те глатких дрвених облога које се провлаче из екстеријера унутра, доприносе исчитавању простора.

Све задатости спајају се у резултату у којима су простори и њихови међусобни односи функционални и на радост корисника. Композиција јесних волумена јесте наглашена, али је у добром односу са амбијентом.