Porodična kuća T. Grabeža

Godina projektovanja
2021
Godina izgradnje
xxxx
Status
Glavni projekat
Lokacija
Banja Luka

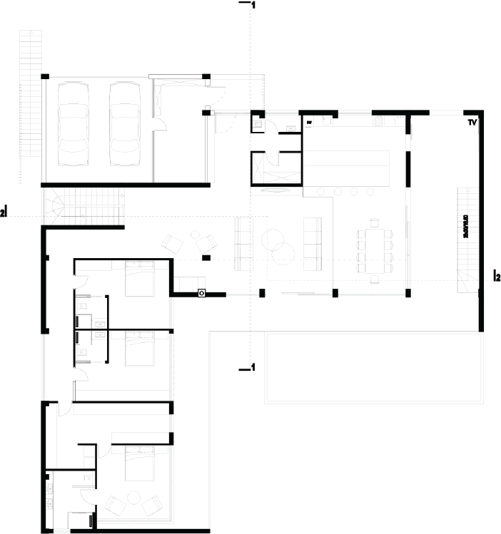
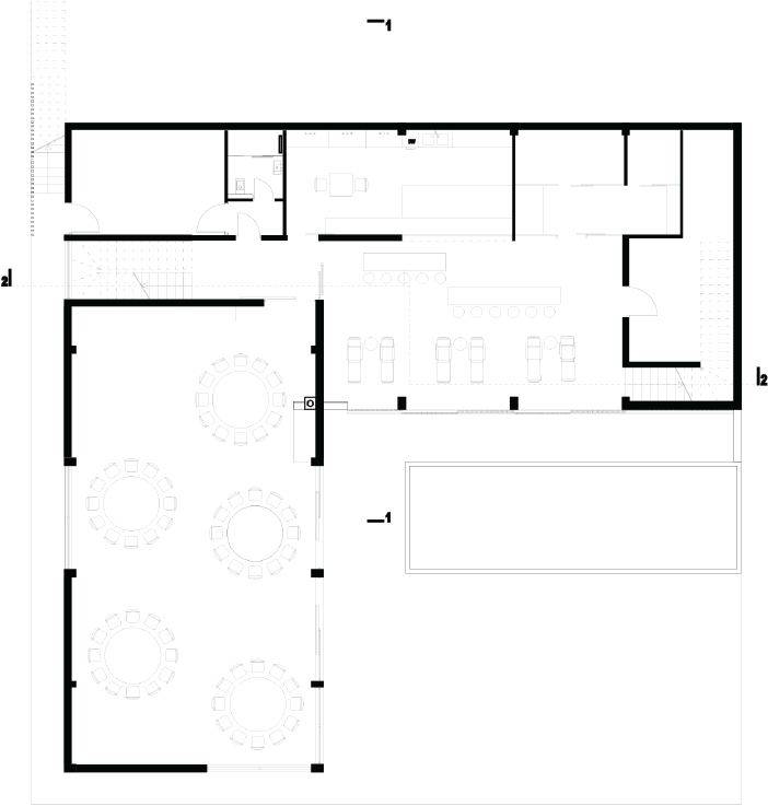
Porodična kuća T. grabeža

Krčmarice, zona koja je u drugoj polovini 20.vijeka služila kao vikend naselje sa malim voćnjacima iz zaleđa grada prometnula se u atraktivno stambeno područje, zelena oaza, ruralni ambijent nadomak urbanom. Objekat na jugozapadnoj padini sa pogledom na grad, izraz je potrebe za stanovanjem u prirodi i intimnijem okruženju.

Tipološki gledano objekat je urbana vila, individualni stambeni objekat sa jednom stambenom jedinicom I velikim prostorom za druženje.Konfiguracija terena omogućila je da se različiti sadržaji pozicioniraju jedan iznad drugog, tako da se stvori dovoljno privatnosi I maksimalno iskoristi otvorenost vizurama.

Oblikovanje je smireno, geometriski čisto, sa igrom tamnog volumena i bijelih površina na obodu. Minimalističkom koloritu suprotstavljaju se bogate teksture kamena u suterenu i drveta. Tamni, grubi kamen ugrađuje se kao naglašeni postament i omaž kamenu na lokalitetu, a svijetlim drvetom oblaže se dio ulazne fasade i veliki pomični paneli tvoreći direktnu reference na okolnu šumu. Otvaranje prostora prozorima u visini cijele etaže i prema prohodnom zelenom krovu naglašena je usmjerenost prema eksterijeru I prednostima visokog zelenila na lokaciji.