Polis
Početna
Projekti
O nama
Novosti
Kontakt
Close
Projekti
Prethodni
Sljedeći
Podijeli
Primary Navigation
Početna
Projekti
O nama
Novosti
Kontakt
Novosti
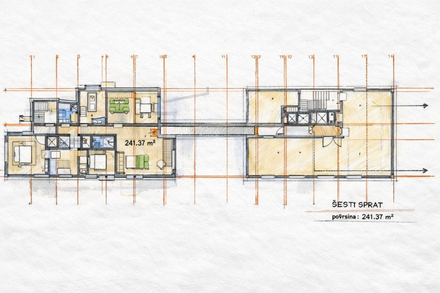
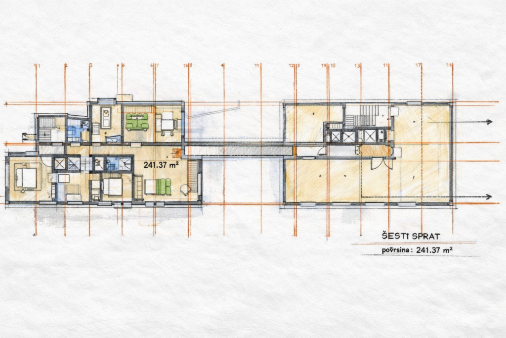
U toku je izrada projektne dokumentacije za nadogradnju dva sprata na objekat LTG Galerija
Podijeli