Turističko – rekreativni centar Turjanica

Godina projektovanja
2021
Godina izgradnje
xxxx
Status
idejni projekat
Lokacija
Laktaši

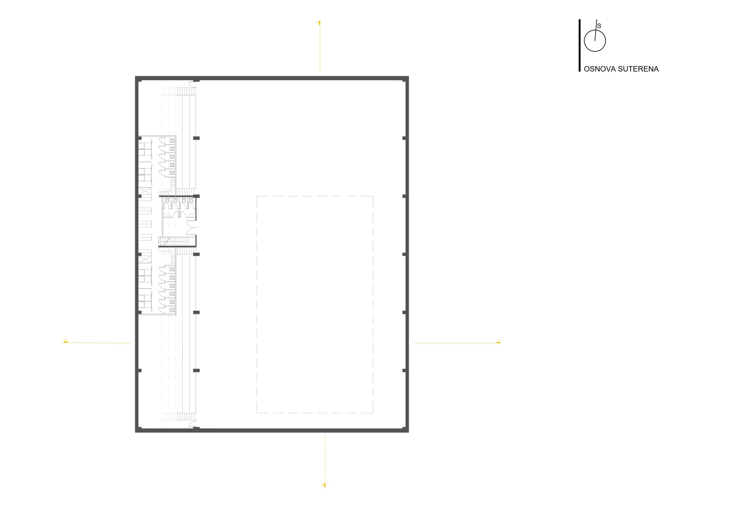
TURISTIČKO – REKREATIVNI CENTAR TURJANICA

Planiranje novog kompleksa Turjanica, na istoimenoj rijeci, ujedno je i stvaranje plana razvoja novog dijela naselja Slatina, pri čemu se postavljaju dva bitna pitanja: kako stvoriti novi kvalitetan dio u prostoru i koji će biti glavni katalizator razvoja. Prijedlog je stvaranje koncepta klostera u postojećoj zelenoj šumi, jasno definišući prirodni prostor, granice, infrastrukturu i hijerarhiju. Svaki klaster ima svoju specifičnost i matricu izgradnje – najmanji objekti na padini, drugi uz rijeku a oba u mirnom dijelu i javni prostor sportske dvorane, hotela, multifunkcionalne dvorane, neophodnog parkiranja te tako se potpuno razvio prostor zelenog centra Turjanica.