Stambeno – poslovni objekat Stepe Stepanovića

Godina projektovanja
2024
Godina izgradnje
2026
Status
Glavni projekat
Lokacija
Banja Luka

Stambeno poslovni objekat stepe stepanovića

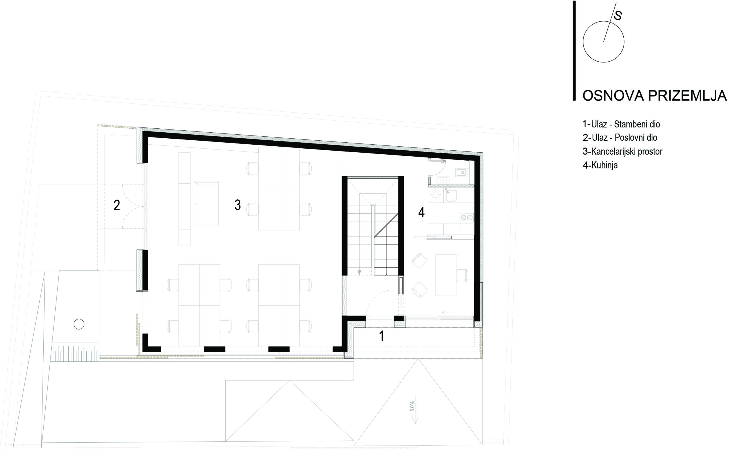
Namjena objekta je stambeno-poslovni objekat gdje je poslovni dio u prizemlju, a stanovanje na prvom i drugom spratu po jedan stan. Prostor podruma je pomoćni prostor kome je zbog nemogućnosti dizanja objekta a neophodnosti prirodnog ventilisanja, ventilisanje omogućeno preko šahta sa rešetkom ispod ulaza u poslovni prostor koji je i jedini natkriven balkonom.

Ulaz u poslovni dio objekta je sa jugozapadne strane objekta i ulazi se u jedinstven prostor, jednu veliku kancelariju koja u pozadini ima sanitarni čvor. Ulaz je natkriven balkonom stambene etaže iznad.Ulaz u stambeni dio je sa jugoistočne strane i ulazi se na stepenište koje vodi do stanova na prvom i drugom spratu, kao i do podruma. Omogućena je i veza sa parkingom natkrivenim direktno sa stepenica, a povlačenjem tog dijela prizemlja unutar građevinske linije dobio se ugodno natkriven prostor ulaza prema stepeništu i dalje stanovima.

Poslovni dio u prizemlj ima samo vanjske zidove koji su AB platna i koja će ostati u obradi završnog betona kao i zid stepeništa koji dijelom zatvara taj prostor. Jedan ,,instalacioni“zid je od gips vlaknastih ploča i završno bojen a sanitarni čvor u sklopu poslovnog prostora, umjesto gipsa je lako cementna ploča obostrano armirana alkalno otpornom staklenom mrežicom preko koje je hidroizolacija i keramika na ljepilu.

Plafon je od profilisanih drvenih letvi 5 x 3 cm u prirodnoj boji drveta, a pod sa podnim grijanjem i završnom obradom od keramike.

Stanovi su sa završnom obradom na beton sa podkonstrukcijom postavljenih gipsvlaknastih ploča sa mrežicom, ljepilom i disperzivnom bojom u završnoj obradi, stropovi spušteni u istoj obradi. A kupatila kao i sanitarni čvor u prizemlju sa lakocementnim pločama obostrano armiranim alkalno otpornom staklenom mrežicom preko koje je hidroizolacija i keramika.

Podovi sa podnim grijanjem i drvenim podom kao završnim slojem osim u kupatilima gdje je keramika.