Porodična kuća Lauš

Godina projektovanja
2023
Godina izgradnje
xxxx
Status
u izgradnji
Lokacija
Banja Luka

porodična kuća lauš

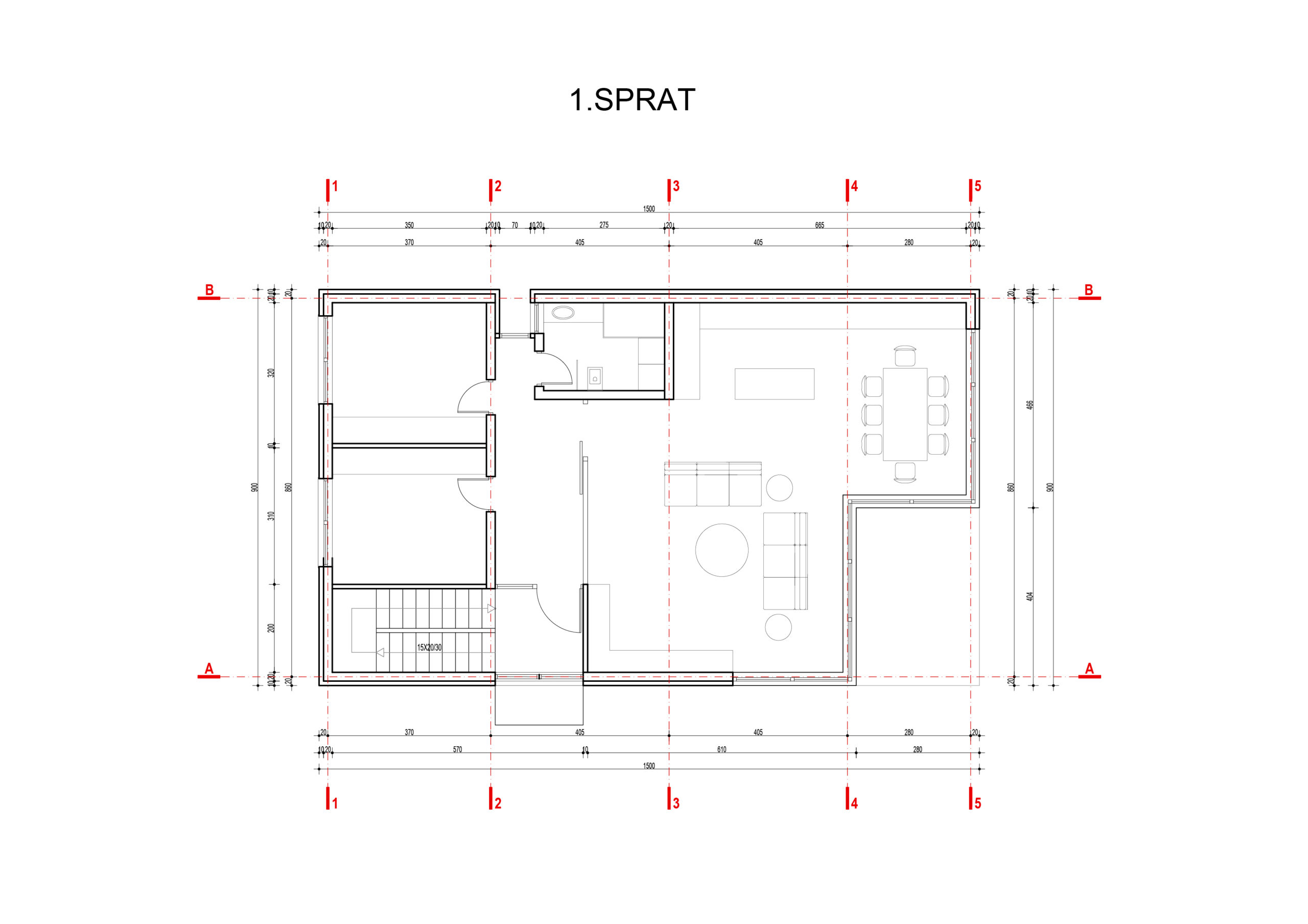
Kuća spratnica duboko je ukorijenjena kao sveprisutna tipologija koja zadovoljava sve zahtjeve korisnika te je uzeta kao početna tačka istraživanja a bila je i želja investitora. Programom su zadani prostori, za tri porodice odvojene stambene jedinice, koje moraju dobro funkcionisati, a njihovi međusobni odnosi i odnos prema vanjskom prostoru predmet su prostorne i dispozicione analize. Ona pokazuje da jednovolumenski tip predstavlja jedinu mogućnost, jer je prostor vrlo ograničen i samo tako je moguće uspostaviti dobar odnos prema susjednim parcelama.

Tako su nastale tri gotovo jednake nadzemne etaže a podrum je prostor za zajedničko vrijeme i druženje. Jednoznačnost volumena ispoštovana je i istim pristupom na fasadi gdje je sve u bjelini neba.