Polis
Početna
O nama
Projekti
Novosti
Kontakt
Close
Projekti
Prethodni
Sljedeći
Podijeli
Primary Navigation
Početna
O nama
Projekti
Novosti
Kontakt
Enterijeri
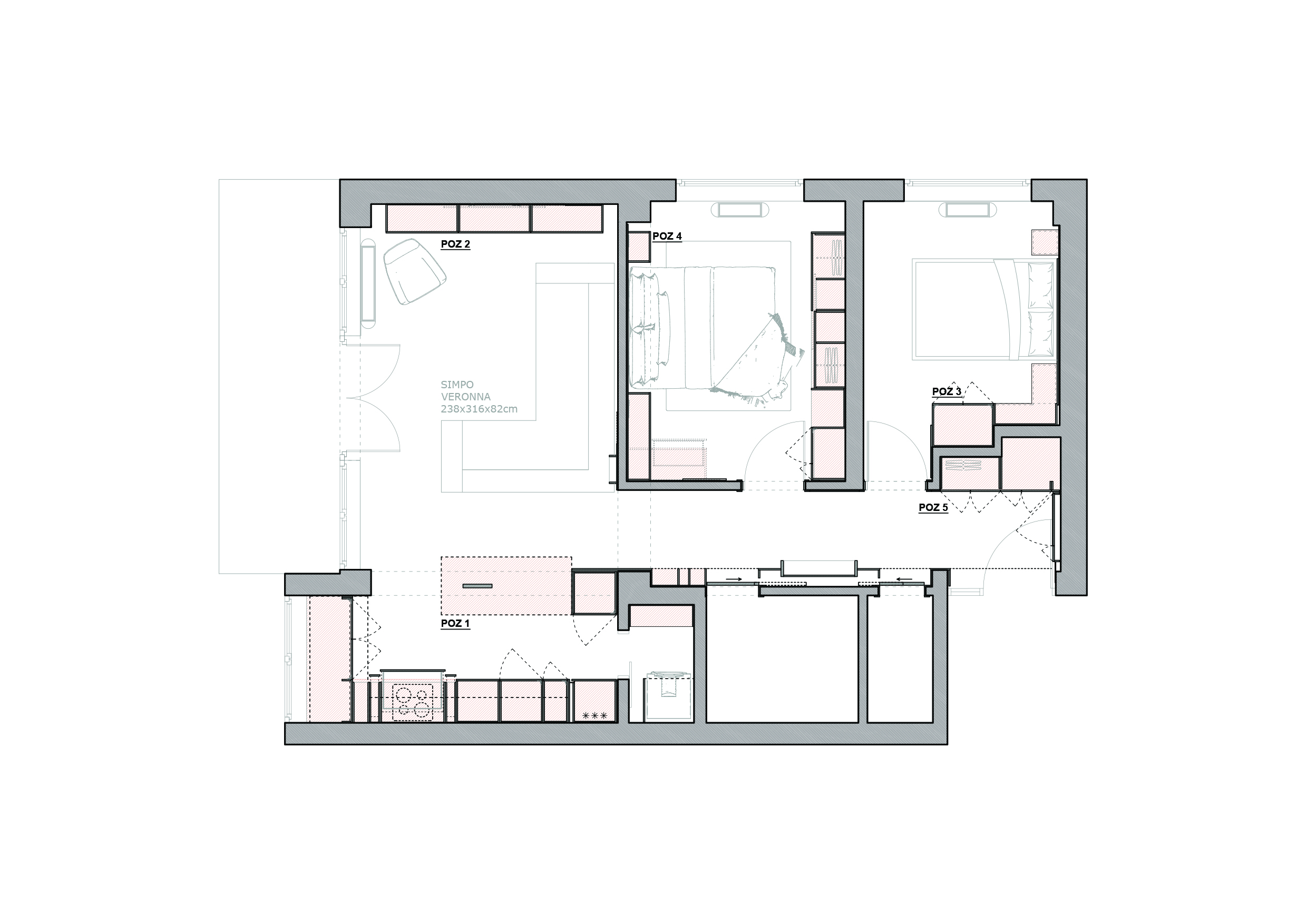
Enterijer stana u Banja Luci
Godina projektovanja
2024
Godina izgradnje
2024
Status
izgrađeno
Lokacija
Banja Luka
program: stambeni
status: izgrađeno
god. projektovanja: 2024 god.
god. završetka radova: 2024 god.
lokacija: Banja Luka
BGP: 64,06 m2
autor: Polis
klijent: privatni
Podijeli