Apartman vile Slatina

Godina projektovanja
2019
Godina izgradnje
xxxx
Status
Glavni projekat
Lokacija
Slatina

Apartman vile slatina

Kompleks Slatina koji se sastoji od šest urbanih vila, tri različita tipa , smješten je pored saobraćajnice preko puta park šume, unutar definisane i ujednačene izgradnje banjskog kompleksa Slatina.

Budući da je pozicija na vrlo atraktivnoj lokaciji i da se sa parcele pružaju kvalitetne vizure na okolni prostor, arhitektonski koncept fokusirao se na razradi tipologije i na maksimalnom otvarnju prostora prema tim vizurama.

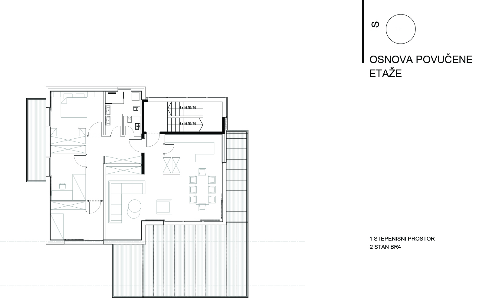
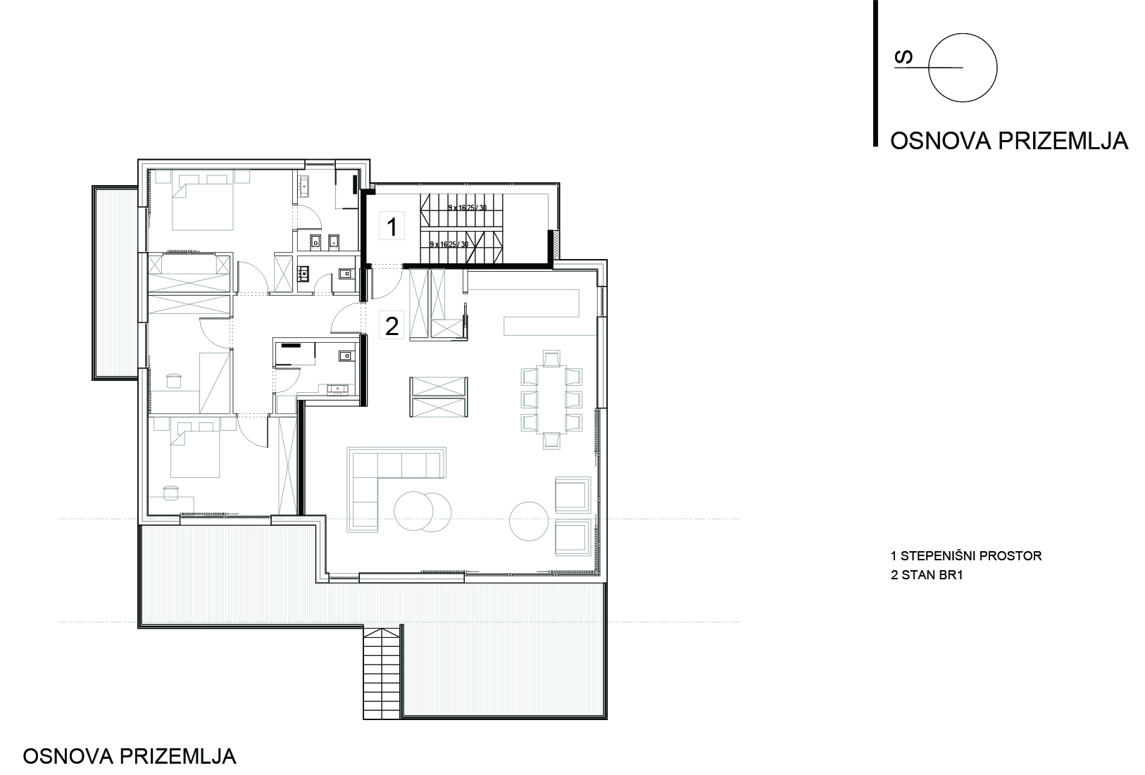
Svaki objekat ima samo četiri stambene jedinice, na prizemlju i povučenoj etaži po jedna ,a na spratovima po dvije. Dispozicijska šema osigurava komoditet i funkcionalnost stanova sa jasno razdjeljenom noćnom i dnevnom zonom. Svaka od zona ima kvalitetnu orijentaciju, obzirom na stranu svijeta i vizure. Sve strane maksimalno su otvorene prema okolnom prostoru staklenim stjenama i terasama , kako bi se potpuno iskoristile prednosti povišene lokacije i otvorenih vizura. Otvaranje prostora prozorima u visini cijeloga sprata naglašena je usmjerenost prema eksterijeru te blagodatima zelenila u okruženju.